
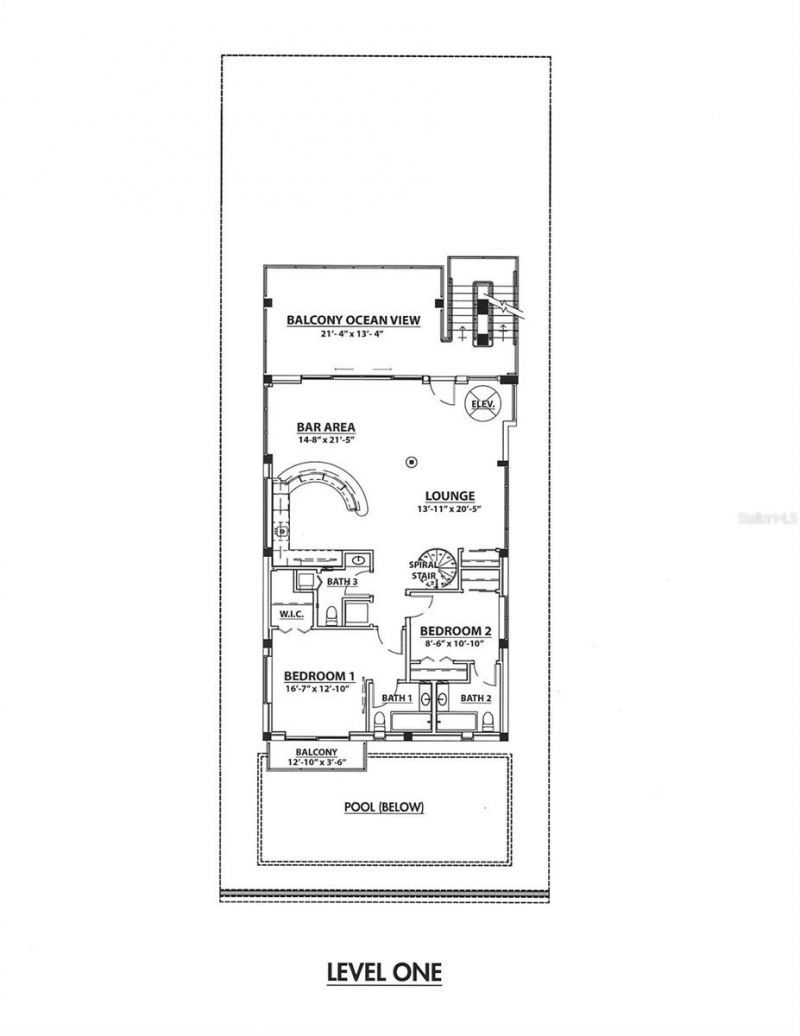
One or more photo(s) has been virtually staged. Pre-Construction. To be built. Unparalleled opportunity to own a signature oceanfront residence blending innovation and artistry along the coveted Bethune Beach Promenade of New Smyrna Beach. This property offers immediate potential to build and customize a coastal masterpiece, crafted from a previously approved, distinctive building design. This 5-bedroom, 5-bath plus two half-bath residence features expansive balconies on every level and a privat...One or more photo(s) has been virtually staged. Pre-Construction. To be built. Unparalleled opportunity to own a signature oceanfront residence blending innovation and artistry along the coveted Bethune Beach Promenade of New Smyrna Beach. This property offers immediate potential to build and customize a coastal masterpiece, crafted from a previously approved, distinctive building design. This 5-bedroom, 5-bath plus two half-bath residence features expansive balconies on every level and a private heated pool. Three living levels are accessed by a round glass elevator that ascends behind a vertical glass wall for four floors, offering breathtaking beach and ocean views. The three-car garage provides ample on-site and nearby off-site parking, ideal for receptions and gatherings. The timing of your purchase will enable you to further personalize and incorporate your own design touches into the home. Designed for buyers seeking either a luxury full-time residence or vacation retreat-with investment potential as a large ultra-luxury rental-this home offers endless possibilities. The property is positioned with dedicated open ground to the south, ensuring unobstructed views of rocket launches from Kennedy Space Center and expansive panoramic ocean vistas. Unwind with a glass of wine to the gentle rhythm of waves from one of your three balconies. Enjoy the best of both worlds-quiet beachfront tranquility just minutes from the many restaurants and shops of Flagler Avenue. Located one block from Bethune Beach Park, offering picnic areas, tennis courts, volleyball, and a kayak launch at Manatee Park on the Indian River Lagoon, or take a short bike ride to the protected Canaveral National Seashore. For more excitement, Orlando attractions like Disney World are just over an hour away. Built to the highest coastal standards with concrete construction and block walls extending from its concrete pile foundation to steel truss roof, this home includes PGT impact windows, an on-demand recirculating hot water system, a complete fire-protection sprinkler system, and smart climate control on each level-promising security, comfort, and enduring value. This highly desirable location is not in a flood zone, which is rare for oceanfront property, and includes a county-maintained protective concrete seawall. The Bethune Beach area also features an attended lifeguard tower and some of the best surfing on the East Coast-where the soothing sound of waves will be music to your ears. This oceanfront masterpiece is designed by famed architect David Harper, recipient of more than 20 design awards for excellence, credited with helping to establish Florida's modern hurricane building code, and listed in Wikipedia among the Most Notable Architects of the 21st Century. This is your opportunity to craft a lasting legacy on the ocean-a breathtaking blend of innovation, design, and pure coastal living. Floorplans available upon request. Land may be sold separately. Virtually staged
View MoreCourtesy of
Agency Name: ENGEL & VOLKERS NEW SMYRNA
Agency Contact: 386-213-6899
Agent Name: Lori Sharlow
Presented by
Agent Name: David Landesman
Agent Phone: Cell: 561.903.0002
Agency Title: The Keyes Company
Send an email with a link to
6608 S Atlantic Avenue, New Smyrna Beach, FL 32169.
Email 6608 S Atlantic Avenue, New Smyrna Beach, FL 32169
Thank you for your inquiry! As a thank you, we have a Special Mortgage Offer for You.
We would like to provide you a free, no-obligation, home loan pre-approval review.