
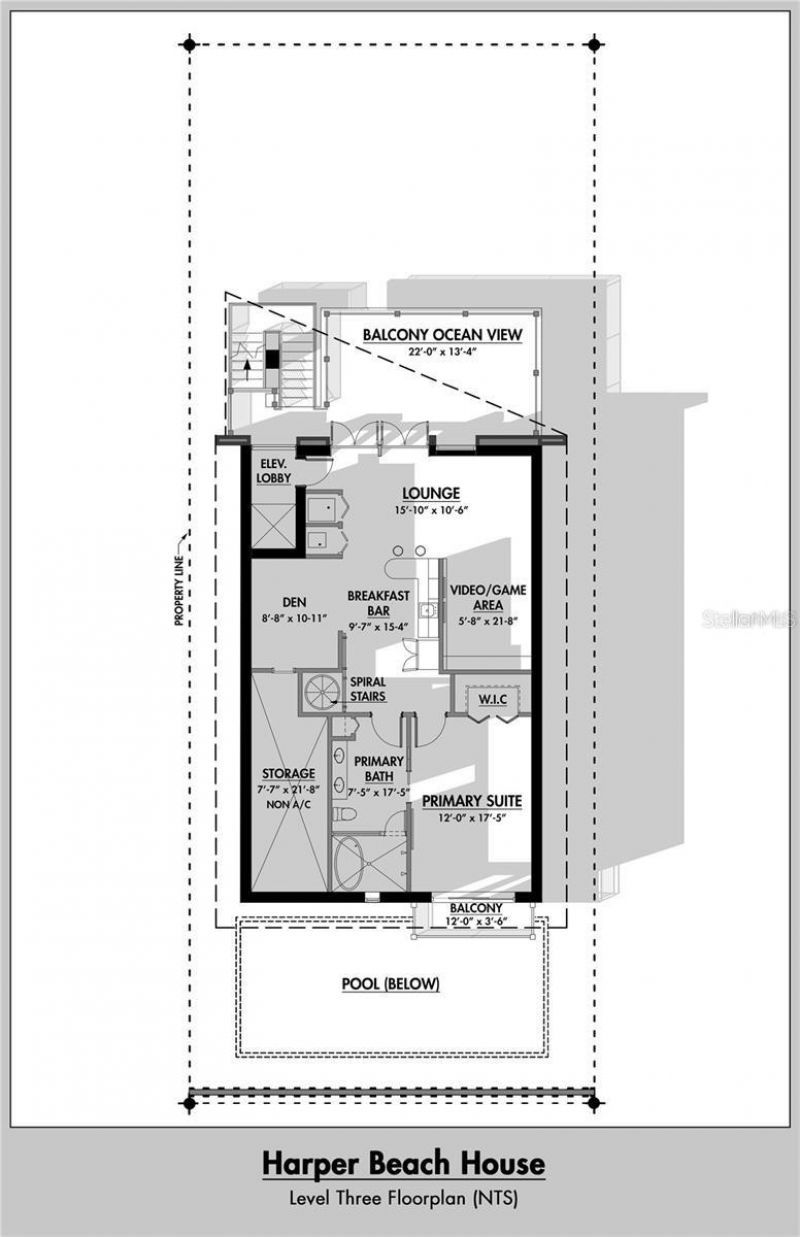
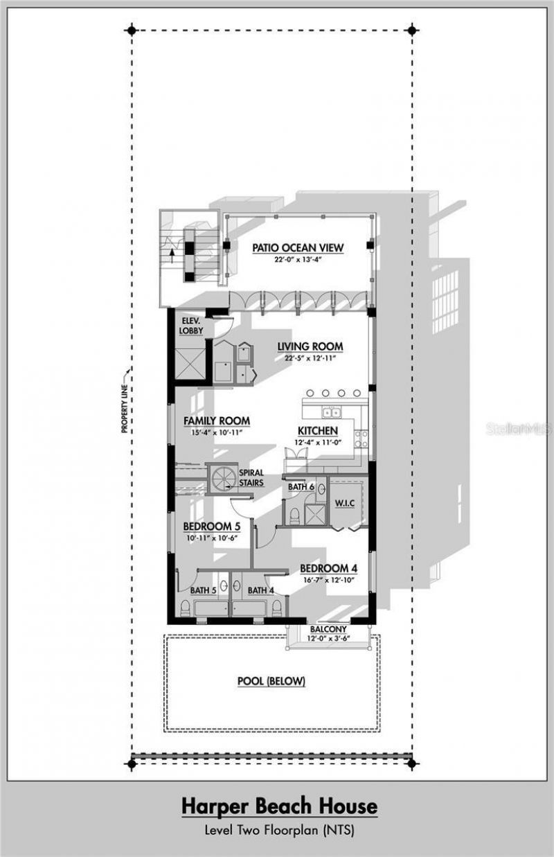
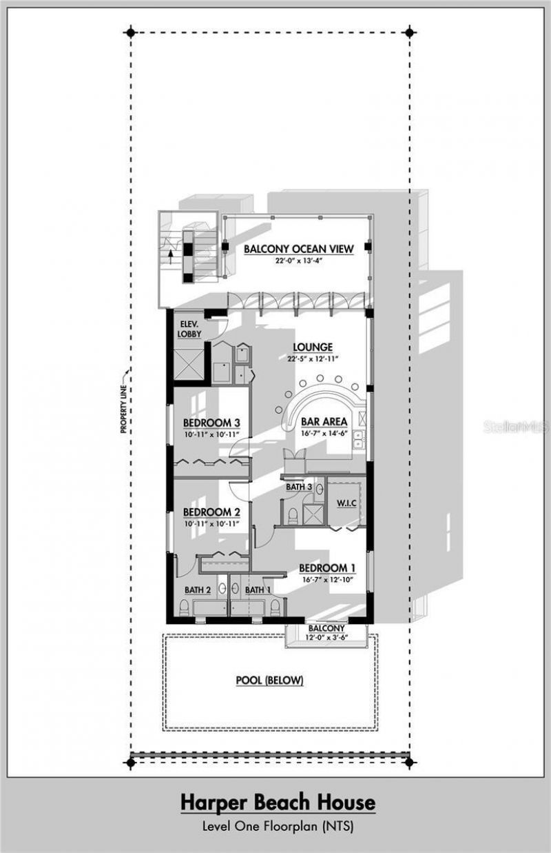
Under Construction. Experience the pinnacle of luxury living with this pre-completion pricing opportunity to own a stunning beachfront residence on the Bethune Beach Promenade in New Smyrna Beach with the opportunity to choose your custom finishes. This is the largest of the seaside homes and is designed for sustainability, beauty, and flexible living options-ideal as a full-time residence, vacation home, or luxury income property. Located just one block from Bethune Beach Park and a short drive...Under Construction. Experience the pinnacle of luxury living with this pre-completion pricing opportunity to own a stunning beachfront residence on the Bethune Beach Promenade in New Smyrna Beach with the opportunity to choose your custom finishes. This is the largest of the seaside homes and is designed for sustainability, beauty, and flexible living options-ideal as a full-time residence, vacation home, or luxury income property. Located just one block from Bethune Beach Park and a short drive to dining and boutique shops on Flagler Ave, while offering convenient access to picnic areas, boat and kayak launches, manatee lagoon and Canaveral National Seashore. Enjoy panoramic ocean views from three levels of expansive balconies. Watch weekly rocket launches from Cape Canaveral, and experience nightly coastal breezes and sunrise views. A fourth-level hot tub overlooks the shoreline for the ultimate relaxation experience. This 6-bedroom, 7-bath heated pool home features three separate living levels, each independently accessible via elevator and individually climate-controlled-ideal for multigenerational living or guest rental flexibility. Each level includes kitchen and bar spaces, plus ample on-site parking and a 3-car garage. The home can comfortably sleep 10+ guests. Built with concrete construction, block walls, and a steel truss roof system for superior durability. Additional features include washer and dryer on every level, a full fire-suppression sprinkler system, PGT impact windows, and an on-demand recirculating hot water system. Situated in a no-flood-zone oceanfront location with a county-maintained protective seawall. Bethune Beach also offers an attended lifeguard tower and is known for some of the best surfing and fishing on Florida's east coast. Designed by award-winning architect David Harper and constructed by Walters Construction-NSB's seasoned residential beachfront builder; this home offers the perfect balance of exclusivity and accessibility. Take advantage of pre-completion pricing and New Builder 1-2-10 year Warranty and own a piece of oceanfront paradise!
View MoreCourtesy of
Agency Name: ENGEL & VOLKERS NEW SMYRNA
Agency Contact: 386-213-6899
Agent Name: Lori Sharlow
Presented by
Agent Name: David Landesman
Agent Phone: Cell: 561.903.0002
Agency Title: The Keyes Company
Send an email with a link to
6604 S Atlantic Avenue, New Smyrna Beach, FL 32169.
Email 6604 S Atlantic Avenue, New Smyrna Beach, FL 32169
Thank you for your inquiry! As a thank you, we have a Special Mortgage Offer for You.
We would like to provide you a free, no-obligation, home loan pre-approval review.