
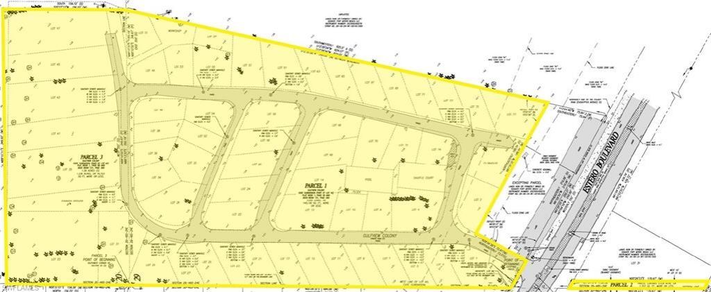
Price reduced nearly 40% for Immediate Sale. The former Gulf View Colony mobile home park represents a rare and unique opportunity for redevelopment in the heart of Fort Myers Beach. With private road access directly onto Estero Boulevard, 1 mile away from the new Margaritaville Beach Resort, and deeded beach access directly across the street, this 4.627 acre site is exceptionally well located. This opportunity is priced based on in-place entitlements for single-family and two-family residential...Price reduced nearly 40% for Immediate Sale. The former Gulf View Colony mobile home park represents a rare and unique opportunity for redevelopment in the heart of Fort Myers Beach. With private road access directly onto Estero Boulevard, 1 mile away from the new Margaritaville Beach Resort, and deeded beach access directly across the street, this 4.627 acre site is exceptionally well located. This opportunity is priced based on in-place entitlements for single-family and two-family residential use with no rezoning required. Download the Offering Memorandum or contact listing broker for complete details.
View MoreCourtesy of
Agency Name: Premier Sotheby's Int'l Realty
Agency Phone: 239-594-9494
Agent Name: Ryan Batey
Presented by
Agent Name: David Landesman
Agent Phone: Cell: 561.903.0002
Agency Title: The Keyes Company
Send an email with a link to
2945 Estero Blvd, Fort Myers Beach, FL 33931.
Email 2945 Estero Blvd, Fort Myers Beach, FL 33931
Thank you for your inquiry! As a thank you, we have a Special Mortgage Offer for You.
We would like to provide you a free, no-obligation, home loan pre-approval review.