
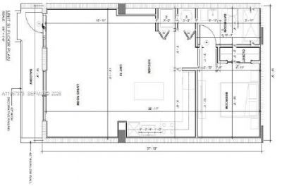
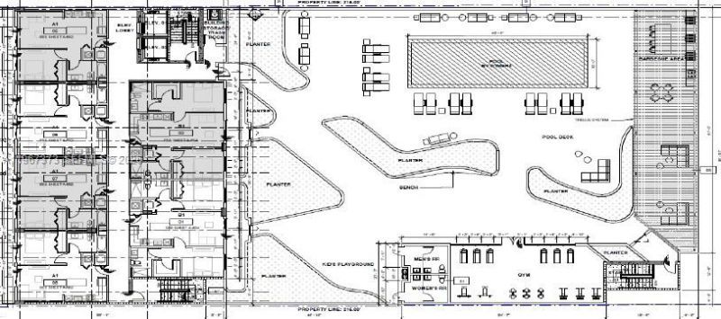
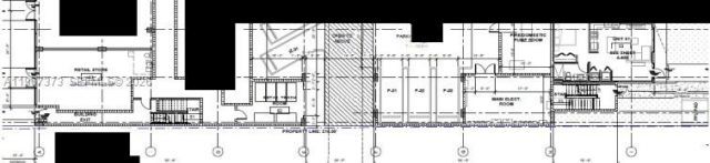
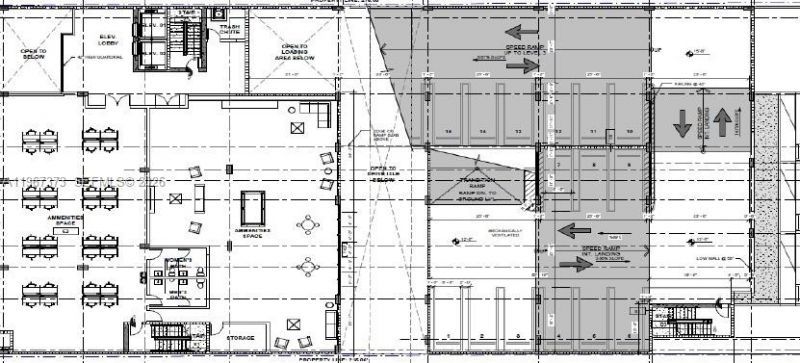
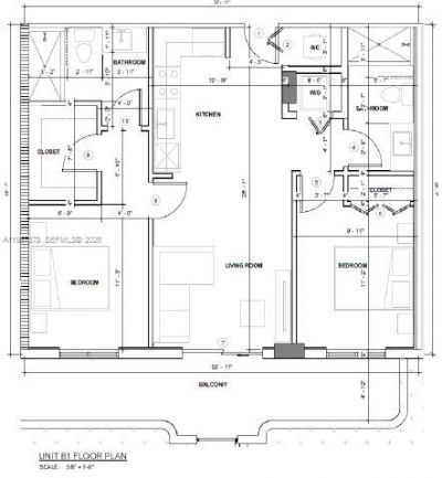
Located on Southwest 8th Street in the premium Little Havana corridor, this is an exceptional development opportunity with plans nearly approved, significantly reducing time to build. The property sits on a 21,002 SF lot and allows for a maximum height of 8 stories under T6-8 O and T4-R zoning, permitting multifamily, hospitality, medical, and retail uses. The proposed project includes 37 residential units comprised of 3 studios (1D/1B) at 600 SF, 24 one-bedroom/one-bath units at 611 SF, and 10 ...Located on Southwest 8th Street in the premium Little Havana corridor, this is an exceptional development opportunity with plans nearly approved, significantly reducing time to build. The property sits on a 21,002 SF lot and allows for a maximum height of 8 stories under T6-8 O and T4-R zoning, permitting multifamily, hospitality, medical, and retail uses. The proposed project includes 37 residential units comprised of 3 studios (1D/1B) at 600 SF, 24 one-bedroom/one-bath units at 611 SF, and 10 two-bedroom/two-bath units at 862 SF. The mixed-use component features 2 retail spaces totaling 2,500 SF (which can be combined), 2,105 SF of mini storage, and 2,500 SF of office space. The development also includes 10,969 SF of amenities highlighted by a pool deck, gardens, and grill area, with approximately 43,661 SF under A/C and 60 parking spaces. Strategically positioned across from the newly delivered 200-unit Gateway to Little Havana project with 10,000 SF of retail, directly across from Miami Dade College with 6,500 enrolled students, within walking distance to the Little Havana Arts and Entertainment District, and surrounded by more than 319,799 residents within a three-mile radius, this project represents a prime, high-impact mixed-use investment opportunity in one of Miamis fastest-growing urban corridors.
View MoreCourtesy of
Agency Name: ISC Realty Corp
Agency Phone: 786-660-6802
Agent Name: Adriana Goncalves
Presented by
Agent Name: David Landesman
Agent Phone: Cell: 561.903.0002
Agency Title: The Keyes Company
Send an email with a link to
2554 SW 8th St , Miami, FL 33135.
Email 2554 SW 8th St , Miami, FL 33135
Thank you for your inquiry! As a thank you, we have a Special Mortgage Offer for You.
We would like to provide you a free, no-obligation, home loan pre-approval review.